Zweithaus im Angerdorf
Die Parzelle als Autorität
Ort Neusiedl am Steinfeld, Niederösterreich
Bauherr ein adliges Ehepaar
Fertigstellung 1965
aus Einfache Häuser Seite 48

Neusiedl, ein Angerdorf südlich von Wien, hat wie die anderen Dörfer dieser Region mit den Problemen des wirtschaftlichen Strukturwandels und der Absiedelung zu kämpfen. Die übliche bauliche Umstrukturierung hatte schon begonnen. Die Hakenhöfe wurden verlassen, und die Zersiedelung des Ortsrandes durch freistehende Einfamilienhäuser in den Obstgärten der langen, tiefen Grundstücke schritt voran.
Der konkrete Hof war der kleinere und für den landwirtschaftlichen Gebrauch unattraktivere von zwei Höfen, die nach einer Erbschaft zusammengelegt worden waren.
Der Parzellenzuschnitt, der gegenwärtig ein Hindernis für eine rationelle Bewirtschaftung darstellt, resultiert aus der alten Gesellschaftsordnung. Der zum Zehent verpflichtete Leibeigene hatte als Viertellehner ca. 4000 m² Grund zur Bewirtschaftung. Er war in dem System von Ober- und Untereigner der letzte in der Hierarchie. Bis 1848 dauerte dieses System, dann wurde er freier Bauer. Der geistige Habitus der Unfreiheit scheint aber heute noch in der Bevölkerung feststellbar. Die Ursachen für den gegenwärtigen architektonischen Wildwuchs im Dorf – auch er ist ein Zeichen der psychischen Situation – sind in dem Phänomen zu suchen, daß die alte Orts- und Hofstruktur immer noch mit sozialer Diskriminierung assoziiert wird. Das Wohnen zu “ebener Erde” ist bei der Landbevölkerung mit geringem Sozialprestige gleichzusetzen. Man distanziert sich vom Boden und von der dörflichen Zeile und demonstriert finanziellen Aufstieg und Emanzipation mit freistehenden Häusern auf hohen Sockeln.
Das Wohnen, das örtliche Umfeld, die Psyche der Bauherrschaft sind auszuloten. Der Architekt baut nicht für sich selbst.

Für den Architekten gilt jedoch der Grundsatz, die vorgegebene städtebauliche Ordnung als verpflichtenden Rahmen zu respektieren, innerhalb dessen sich die individuelle Freiheit vollziehen kann.
Einen grundsätzlichen Konflikt galt es zu lösen: jenen zwischen der baulichen Vorgabe als Ausdruck der leibeigenen landwirtschaftlichen Nutzung und der neuen Bestimmung als Freizeitdomizil einer adeligen Bauherrschaft.

Dem Anspruch städtischen Komforts und maximaler Bewegungsfreiheit hätte der Baubestand alleine jedoch nicht ausreichend entsprochen. Überdies war das Wohnhaus aus Bruchsteinmauerwerk bis über das Fensterparapet durchfeuchtet, da der Grundwasserstand in Neusiedl je nach Jahreszeit sehr hoch ist. Die Totalsanierung des Hofes hätte bei diesem schlechten Erhaltungszustand hohe Kosten verursacht. Man entschied sich daher für einen Teilabbruch.
Die Aufgabenstellung
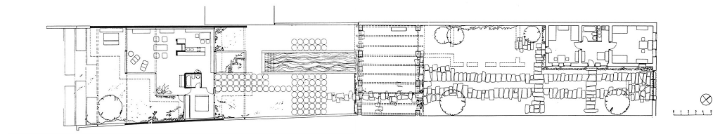
Wie kann man mit nur 100m² der Neubaufläche eine 200m lange Hof und Wiesenparzelle zu einem einzigen Raum-Bau-Kontinuum gliedern, das die neuen gesellschaftlichen Ansprüche erfüllt und sie wiederspiegelt?

Das Haus ist auf der schmalen Hofparzelle, also innerhalb der imaginären hinteren Baufluchtlinie des alten Dorfes situiert und nimmt wie die Scheune die gesamte Breite des Grundstücks ein. Die Flurparzelle mit dem Obstgarten bleibt unberührt. Insofern ist der Neubau gut in die Ortsstruktur eingefügt. Der Blick in die Tiefe der Flurparzelle wird durch 2 riesige Bäume an der Grundgrenze symmetrisch gefaßt. Das insgesamt 200 m lange Grundstück wurde durch eine rhythmische Abfolge von Gebäuden und Außenräumen gegliedert: Gästehaus und Tor – erster Hof – Scheune – zweiter Hof – Wohnhaus – Garten.


Ein Neubau wurde für die eigentlichen Wohnräume geplant. Seine Position und Ausformung bilden das entscheidende Kriterium des Entwurfs. Hier wird das widersprüchliche Verhältnis des Bauherrn zum Dorf thematisiert und das Spannungsfeld von bescheidener struktureller Unterordnung und großzügiger Selbstdarstellung sichtbar gemacht.


Beim Neubau wurde der Baukörper aufgebrochen und bewirkte dadurch
eine Verklammerung mit der Umgebung. Durch die Abstufung der Fassade zum
Garten hin und die fast gänzliche Auflösung in Glas verschwindet der
Eindruck einer Raumbegrenzung, und Haus und Garten bilden eine Ganzheit.


Der herbe Materialcharakter bewahrt das Feriendomizil vor der Idylle, die dem Rückzug des Stadtadels ins Dorf innewohnt, und die bäuerliche Nachbarschaft vor diskriminierendem Prunk.
47.7780081670943, 16.10617507912347 ©geoland.at